Die Diskussion um nachhaltiges Bauen und bezahlbares Wohnen ist in Fachkreisen in aller Munde. Bei unserer Veranstaltung „Wie gelingt CO2-neutrales Bauen?“ haben wir uns ebenfalls mit dieser Frage auseinandergesetzt. Alle Experten waren sich einig: Die Umsetzung dieser Ziele ist eine enorme Herausforderung für die Baubranche.
Dieser Herausforderung wollen wir uns stellen. Als Verantwortliche der Eggarten-Siedlung haben wir uns in einer Charta verpflichtet, ein klima- und umweltfreundliches Quartier zu errichten.
![Cradle-to-Cradle-Prinzip, Quelle: [The Noun Project; CC BY 3.0 US]](https://www.eggarten-siedlung.de/wp-content/uploads/2023/10/unterbauung2-150x150.png)
Anhand von drei Beispielen aus der Planung, aus der Bauphase und dem Betrieb zeigen wir, welche neuen Wege wir gehen werden, um ein klimafreundliches Quartier zu bauen.
Bei der Planung: Reduzierung der Unterbauung im Quartier

Klassischerweise stehen in Quartieren oftmals viele Autos im Straßenraum und auf versiegelten Parkplatzflächen. In jüngeren Quartieren wurden für Fahrzeuge vermehrt Tiefgaragen errichtet. Die Autos stehen dann nicht auf den Straßen, wodurch sich oberirdisch die Lebensqualität verbessert. Auf den freien Flächen können Grünbereiche, Spielplätze oder weitere Gebäude entstehen.
Wir wollen jedoch die Unterbauung der Innenhöfe in der Eggarten-Siedlung noch weiter reduzieren, um den Verkehr innerhalb des Quartiers weitestgehend einzuschränken und eine vielfältige Nutzung und Gestaltung mit Großbäumen zu ermöglichen. Aus diesem Grund planen wir am Quartiersrand Hochgaragen bzw. Quartiersgaragen – verbunden mit einem intelligenten Mobilitätskonzept.
Durch den Wegfall der Tiefgaragen in den Innenhöfen sparen wir rund 47.000 m2 Bruttogeschossfläche in den Untergeschossen und können so über einen Zeitraum von 50 Jahren 16.800 Tonnen CO2-Emissionen einsparen (Quartiergaragenbau nicht eingerechnet). 1
Damit kommt ein Auto etwa 2,6-mal (102.436.024 km) um die Erde. (Vergleichsrechner vom Umweltbundesamt).
1 Ökobilanz bisheriger Projekte für Tiefgaragen – 7,2 kg CO2 Äquivalent /m2 (Erstellung Kellergeschoss inklusive Instandhaltung nur Kostengruppe 300) bei 50 Jahren Nutzungsdauer
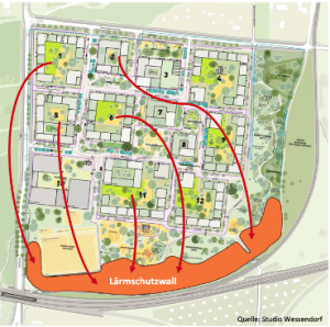
Bauphase: Lärmschutzwall wird mit Aushub errichtet

Wenn mit dem Bau begonnen wird, kommt schweres Gerät zum Einsatz, um das Erdmaterial, den so genannten Aushub, abzutragen. Dieser Aushub wird in der Regel in einem Umkreis von 20 Kilometern zu einer Deponie transportiert oder anderweitig verwendet.
In der Eggarten-Siedlung planen wir diesen entstehenden Aushub für die Errichtung eines Lärmschutzwalls. 90.000 Tonnen werden durch den Aushub entstehen und für den Lärmschutzwall genutzt. Durch den Wegfall der Transportwege werden rund 113 Tonnen CO2-Emissionen eingespart.
Das sind umgerechnet 4.200 Einzelfahrten mit der Bahn Berlin-München. (Vergleichsrechner vom Umweltbundesamt).
Reduktion der üblichen Transportwege von 20 km auf 0,5 km = 19,5 km bei 3.600 Fahrten, Ersparnisse von 70.200 km. Reduktion der transportbedingten Emissionen von 116 auf 3 Tonnen CO2-Äquivalent.
Im Betrieb: Nutzung von lokalem Grundwasser zur Wärmeerzeugung

Anfang des Jahres 2023 haben wir die Genehmigung erhalten, das örtliche Grundwasser zur Wärmeerzeugung zu nutzen. Eine Grundwasserwärmepumpe nutzt die Wärme des Grundwassers und ist aufgrund der konstanten Temperaturen besonders effizient.
Die grünen Punkte in der Zeichnung sind die Entnahmestellen (Horizontalfilterbrunnen zur Grundwasserentnahme im Süden des Quartiers). Die Warmwasserbereitung erfolgt über dezentrale Wasser-Sole-Wärmepumpen in den Gebäuden (rote Quadrate). Über die blauen Punkte wird das Wasser wieder in die Erde abgeleitet und dem Grundwasser zugeführt.
Durch diese Art der Wärmeversorgung werden z. B. im Vergleich zu einem Nahwärmenetz mit Blockheizkraftwerk in Kombination mit Solarthermie über einen Zeitraum von 50 Jahren 7,9 Tonnen CO2-Emissionen pro Einwohner eingespart.
Das entspricht 294 Einzelfahrten auf der Strecke Berlin – München. (Vergleichsrechner vom Umweltbundesamt).
Autor: Joachim Jaenicke
Quellen:
www.umweltbundesamt.de
www.oekobaudat.de
egs-plan
Studio Wessendorf
Atelier Loidl
		